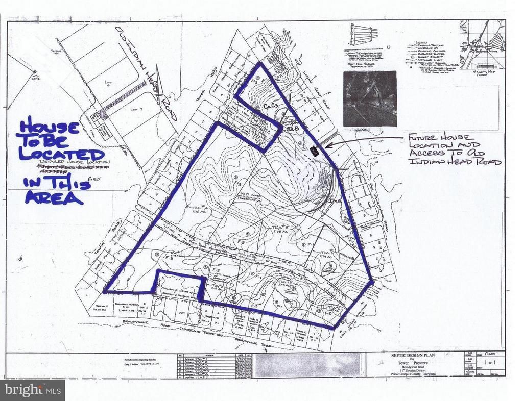
52.43+/- acres. The site has a 0.76-acre house site location with the remainder of the parcel in a permanent tree preservation easement. Passing the percolation test for a home. The cleared area is limited to a specific location on the property. The remainder of the site could have a future select cut timber harvest. Passive recreational uses, hunting, and woodland farming. No further clearing allowed other than the building site!
Listed By
Agency Name: Realty Navigator
Agency Phone: 4432563773
Shown By
Agency Title: Berkshire Hathaway HomeServices Homesale Realty
Agency Phone: +18003833535
Estimated Payment
$ 639.97 per month $556.17 Principal & Interest $10.92 Property Tax $72.89 Homeowner's Insurance
13800 Keller Way | MLS# MDPG2149868
This land located at 13800 Keller Way, Brandywine, MD 20613 is currently listed for sale with an asking price of $249,900. The property has approximately 52.43 Acres. Keller Way is located within the PRINCE GEORGES COUNTY PUBLIC SCHOOLS school district. Search Brandywine real estate on www.homesale.com today.